Direktmailer

Haus Stöcklin Ferienwohnung Badenweiler
Badstraße 30
79410 Badenweiler
Mail:Willi.Stoecklin(att)Online.de
07632-5873

 

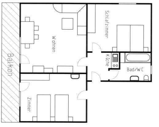
Grundriss